Артикул:
П1-06
Подъемник четырех-стоечный стационарный П1-06 предназначен для подъема/опускания грузовых автомобилей грузоподъемностью до 12 тонн при выполнении их технического обслуживания и ремонта. Подхват автомобиля осуществляется за раму.
Технические преимущества П1-06
- Стационарное размещение стоек
- Синхронизация перемещения кареток противоположных стоек обеспечена цепной передачей
- Усиленные профили стоек
- При подъеме автомобиля за раму есть возможность работать с колесами
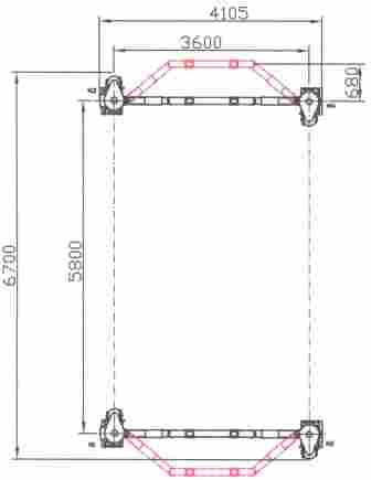
- По желанию потребитея возможно изменять расстояние между смежными стойками (5800 мм)
- Синхронизация кареток противоположных стоек осуществляется цепной передачей.
- Траверса между стойками выполнена разъемной.
- Электрооборудование подъемника позволяет управлять как всеми стойками с общего пульта, так и каждой парой стоек в отдельности.
Подхват автомобиля производится за раму.
Электрооборудование подъемника позволяет управлять всеми стойками с общего пульта или одной парой стоек по отдельности со своего пульта.
По технике безопасности применяются грузовые, регулируемые по высоте подставки П-238.04.000 (4шт.г/п 4т.каждая, поставляются по отдельному заказу).
Конструкция подъемника предусматривает климатическое исполнение «У» и категорию размещения 4 по ГОСТ15150-69.
Испытание подъемников проводятся методом нагружения стоек со статической перегрузкой от номинальной на 25% и динамической перегрузкой на 10%.
Основные узлы конструкции расчитаны в соответствие с требованиями безопасности, надежности и долговечности для оборудования такого типа.
Гарантийный срок 12 месяцев.
Покрытие -порошковая окраска.
При установке подъемника возможно уменьшение длины подъемника.
Упаковка: 3места, 2 поддона деревянных закрытые пленкой и металлический короб.
Сертификат соответствия требованиям технического регламента Таможенного союза.




Технические преимущества П1-06
- Стационарное размещение стоек
- Синхронизация перемещения кареток противоположных стоек обеспечена цепной передачей
- Усиленные профили стоек
- При подъеме автомобиля за раму есть возможность работать с колесами
- По желанию потребитея возможно изменять расстояние между смежными стойками (5800 мм)
- Синхронизация кареток противоположных стоек осуществляется цепной передачей.
- Траверса между стойками выполнена разъемной.
- Электрооборудование подъемника позволяет управлять как всеми стойками с общего пульта, так и каждой парой стоек в отдельности.
Подъемник электромеханический П1-06 ,стационарный предназначен для вывешивания грузовых автомобилей, автобусов и другой колесной техники весом до 12т при выполнении их технического обслуживания и ремонта.
Подхват автомобиля производится за раму.
Электрооборудование подъемника позволяет управлять всеми стойками с общего пульта или одной парой стоек по отдельности со своего пульта.
По технике безопасности применяются грузовые, регулируемые по высоте подставки П-238.04.000 (4шт.г/п 4т.каждая, поставляются по отдельному заказу).
Конструкция подъемника предусматривает климатическое исполнение «У» и категорию размещения 4 по ГОСТ15150-69.
Испытание подъемников проводятся методом нагружения стоек со статической перегрузкой от номинальной на 25% и динамической перегрузкой на 10%.
Основные узлы конструкции расчитаны в соответствие с требованиями безопасности, надежности и долговечности для оборудования такого типа.
Гарантийный срок 12 месяцев.
БОЛТ фундаментный в сборе с крепежом (24 шт - для П1-06) Цена: 389 руб. за шт.
РАМА для установки подъемника П1-06 (без короба) (комплект из 2 шт.) (в к-т подъемника не входит) П1-06.20.000 Цена: 38 114.00 (за к-т из 2-х шт)
Система безопасности 2-х уровней:
1. Механический уровень:
-несущая и страхующая гайки
-самотормозящая резьба на грузовом винте.
2. Электрический уровень:
-блокировка подъема каретки через аварийный выключатель в случае износа несущей гайки
-верхние и нижние концевые выключатели с электрической блокировкой при срабатывании одного из них
-защита электродвигателей от перегрузок и коротких замыканий.
РАМА для установки подъемника П1-06 (без короба) (комплект из 2 шт.) (в к-т подъемника не входит) П1-06.20.000 Цена: 38 114.00 (за к-т из 2-х шт)
Система безопасности 2-х уровней:
1. Механический уровень:
-несущая и страхующая гайки
-самотормозящая резьба на грузовом винте.
2. Электрический уровень:
-блокировка подъема каретки через аварийный выключатель в случае износа несущей гайки
-верхние и нижние концевые выключатели с электрической блокировкой при срабатывании одного из них
-защита электродвигателей от перегрузок и коротких замыканий.
Покрытие -порошковая окраска.
При установке подъемника возможно уменьшение длины подъемника.
Упаковка: 3места, 2 поддона деревянных закрытые пленкой и металлический короб.
Сертификат соответствия требованиям технического регламента Таможенного союза.


Технические характеристики П1-06
| Грузоподъемность, т | 12 |
| Высота подъема, мм | 1900 |
| Время подъема, сек | 80 |
| Длинна платформ, мм | 5800 |
| Количество двигателе, шт. | 4 |
| Напряжение питания, В | 380 |
| Мощность, кВт | 8.8 |
| Габаритные размеры, мм | 1100х1096х2515 |
| Масса, кг | 1870 |
Упаковка, вид:


|
Страна производства
|
Россия |
|
Бренд
|
ДАРЗ (Россия) |
|
Синхронизация
|
нижняя |
|
Тип подъемника
|
стационарный |
|
Тип автомобиля
|
грузовой |
|
Выс.подъем.для подъемников
|
1900 |
|
Грузоподъемность подъемника
|
12000 |
|
Цена подъемника
|
запросить скидку |
|
Вид подъемника
|
грузовой |
|
Тип привода подъемника
|
электромеханический |
|
Напряжение питания
|
380 |
|
Цвет
|
синий |
|
Разблокировка подъемника
|
электро-съем |
Отзывы
Оставить отзыв
Загрузка отзывов...
Вы можете воспользоваться одним из следующих вариантов оплаты:
- Оплата наличными. Мы принимаем наличные деньги (только рубли) через кассовый фискальный аппарат.
- Безналичный расчет для юридических и частных лиц.
- Оплата банковской картой. Оплата происходит через ПАО СБЕРБАНК с использованием Банковских карт следующих платежных систем: VISA, VISA Electron, Maestro, MasterCard, МИР
Товар можно получить одним из следующих способов:
- Самовывоз товара с пункта выдачи по адресу в вашем городе.
- Курьерская доставка с 9-00 до 23-00 по рабочим дням. Покупатель обязуется разгрузить оборудование собственными силами и в кратчайшие сроки. Простой автомобиля оплачивается отдельно.
- Доставка одной из следующих транспортных компаний: "ПЭК" (Первая Экспедиционная Компания), "ЖДЭ" (ЖелДорЭкспедиция), "ЭНЕРГИЯ", "ДЕЛОВЫЕ ЛИНИИ", "СДЭК" и другие.

