Артикул:
GL3 LUX (ТЭН)
Окрасочно-сушильная камера Guangli GL3 LUX (ТЭН) (300 кВт)
Окрасочно-сушильная камера Guangli GL3 предназначена для окраски легковых автомобилей и коммерческого транспорта. Металлическое основание со 100% полнорешетчатым полом, нагрузка на две полосы решеток до 600кг на отпечаток колеса.
Камера для окраски легкового и коммерческого транспорта:
Внешние габариты: длина-7,0 м; ширина-5,3 м; высота-3,5 м.
Внутренние габариты: длина-6,9 м ширина-3,9 м; высота-2,7 м.
В комплекте:
Итальянская электрическая горелка Riello G20: мощность 200 кВт.
Приточный вентилятор: мощностью 7.5 кВт.
Вытяжной вентилятор: мощностью 7.5 кВт.
Теплообменник: из жаростойкой нержавеющей стали.
Основные особенности и описание Guangli GL3
• Окрасочно-сушильная камера Guangli GL3 имеет в своей основе металлическое основание высотой 30 см. Напольные решётки выдерживает нагрузку до 600 кг на одно колесо.
• В стандартном исполнении камера Guangli GL3 комплектуется дизельной горелкой из нержавеющей стали Riello G20 итальянского производства. Мощность горелки составляет 202 кВт, 90 % нагретого воздуха подвергается рециркуляции.
• Корпус камеры собирается из сэндвич-панелей толщиной 50 мм. В качестве наполнителя используется пенополистирол, опционально можно в качестве наполнителя использовать минеральную вату.
• Заслонка, переключающая режимы окраска/сушка, срабатывает автоматически посредством пневматики.
• Блок управления и его компоненты импортного производства они защищены от перегрузки, перегрева и пропадания фазы, мотор с линейным приводом. При истечении заданных значений времени, работа камеры автоматически прекращается.
• Покраска происходит при постоянной температуре.
• Фронтальная дверь покрасочной камеры состоит из 3-х створок, аварийная дверь находится сбоку камеры, она оборудована пневматическим затвором.
Окрасочно-сушильная камера Guangli GL3 оборудована двумя вентиляторами приточным и вытяжным:
Наличие двух вентиляторов позволяет: обеспечивать воздухообмен внутри камеры до 22 000 м³/ч, скорость потока воздуха внутри камеры составляет 0.2 м/с.
Приточный вентилятор обладает мощностью 7.5 кВт.
Вытяжной вентилятор обладает мощностью 5.5 кВт.
Заслонка, переключающая режимы окраска/сушка, срабатывает автоматически посредством пневматики.
Система фильтров состоит из:
Потолочного фильтра (степень фильтрации 98 %) Потолочный фильтр состоит из 4-х фильтров, которые монтируются над несущей рамой, выполненной из стали и покрашенной порошковым покрытием.
Напольного фильтра (степень фильтрации 95 %) Напольный фильтр состоит из 2-х частей и одного выпускного фильтра.
Предварительной очистки фильтр (степень фильтрации 80 %), грубая очистка.
Освещение ОСК GL3
Верхнее освещение окрасочно-сушильной камеры Guangli GL3 состоит из: 10 плафонов, каждый плафон состоит из 40 ламп по 18 Вт.
Боковое освещение окрасочно-сушильной камеры Guangli GL3 состоит из: 8 плафонов, каждый плафон состоит из 2 ламп по 18 Вт.
Блок управления и его компоненты импортного производства (Mitsubishi, Omron), они защищены от перегрузки, перегрева и пропадания фазы, мотор с линейным приводом. При истечении заданных значений времени, работа камеры автоматически прекращается. Покраска происходит при постоянной температуре.
Питание камеры Guangli GL3 осуществляется: посредством трёхфазной сети с напряжением 380 В, мощность установки 15 кВт.
Дополнительно опции к Guangli GL3
Газовая горелка RIELLO max мощностью 200 кВт (по запросу)
Повышение мощности теплообменника и горелки до 300 кВт (энергоноситель дизель) для работы при -20С (по запросу)
Повышение мощности теплообменника и горелки до 300 кВт (энергоноситель газ) для работы при -20С (по запросу)
Дополнительные ворота для камеры проездного типа (по запросу)
Утепленная крыша, наполнение пенополистирол 50 мм. (по запросу)


Соответствия и стандарты:
Оборудование соответствует требованиям ТР ТС 004/2011 О безопасности низковольтного оборудования, ТР ТС 010/2011 О безопасности машин и оборудования, ТР ТС 020/2011 Электромагнитная совместимость технических средств, а также ГОСТ Р МЭК 60204-1-2007, ГОСТ 30804.6.2-2013, ГОСТ 30804.6.4-2013, ГОСТ 12.2.003-91, ГОСТ 15150-69. Оборудование максимально адаптировано для работы в Российских условиях. Имеет ряд защитных устройств для предотвращения аварийных ситуаций, связанных с нестабильностью сетей.
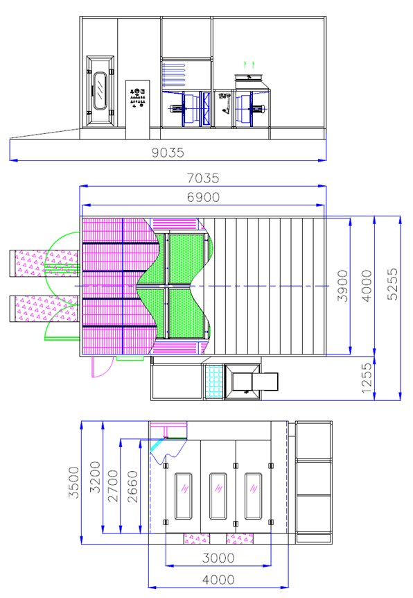
Габаритные размеры Guangli GL3

Принцип работы камеры в разных режимах:

Схема размещения ОСК в транспорте:

Окрасочно-сушильная камера Guangli GL3 предназначена для окраски легковых автомобилей и коммерческого транспорта. Металлическое основание со 100% полнорешетчатым полом, нагрузка на две полосы решеток до 600кг на отпечаток колеса.
Камера для окраски легкового и коммерческого транспорта:
Внешние габариты: длина-7,0 м; ширина-5,3 м; высота-3,5 м.
Внутренние габариты: длина-6,9 м ширина-3,9 м; высота-2,7 м.
В комплекте:
Итальянская электрическая горелка Riello G20: мощность 200 кВт.
Приточный вентилятор: мощностью 7.5 кВт.
Вытяжной вентилятор: мощностью 7.5 кВт.
Теплообменник: из жаростойкой нержавеющей стали.
Основные особенности и описание Guangli GL3
• Окрасочно-сушильная камера Guangli GL3 имеет в своей основе металлическое основание высотой 30 см. Напольные решётки выдерживает нагрузку до 600 кг на одно колесо.
• В стандартном исполнении камера Guangli GL3 комплектуется дизельной горелкой из нержавеющей стали Riello G20 итальянского производства. Мощность горелки составляет 202 кВт, 90 % нагретого воздуха подвергается рециркуляции.
• Корпус камеры собирается из сэндвич-панелей толщиной 50 мм. В качестве наполнителя используется пенополистирол, опционально можно в качестве наполнителя использовать минеральную вату.
• Заслонка, переключающая режимы окраска/сушка, срабатывает автоматически посредством пневматики.
• Блок управления и его компоненты импортного производства они защищены от перегрузки, перегрева и пропадания фазы, мотор с линейным приводом. При истечении заданных значений времени, работа камеры автоматически прекращается.
• Покраска происходит при постоянной температуре.
• Фронтальная дверь покрасочной камеры состоит из 3-х створок, аварийная дверь находится сбоку камеры, она оборудована пневматическим затвором.
Окрасочно-сушильная камера Guangli GL3 оборудована двумя вентиляторами приточным и вытяжным:
Наличие двух вентиляторов позволяет: обеспечивать воздухообмен внутри камеры до 22 000 м³/ч, скорость потока воздуха внутри камеры составляет 0.2 м/с.
Приточный вентилятор обладает мощностью 7.5 кВт.
Вытяжной вентилятор обладает мощностью 5.5 кВт.
Заслонка, переключающая режимы окраска/сушка, срабатывает автоматически посредством пневматики.
Система фильтров состоит из:
Потолочного фильтра (степень фильтрации 98 %) Потолочный фильтр состоит из 4-х фильтров, которые монтируются над несущей рамой, выполненной из стали и покрашенной порошковым покрытием.
Напольного фильтра (степень фильтрации 95 %) Напольный фильтр состоит из 2-х частей и одного выпускного фильтра.
Предварительной очистки фильтр (степень фильтрации 80 %), грубая очистка.
Освещение ОСК GL3
Верхнее освещение окрасочно-сушильной камеры Guangli GL3 состоит из: 10 плафонов, каждый плафон состоит из 40 ламп по 18 Вт.
Боковое освещение окрасочно-сушильной камеры Guangli GL3 состоит из: 8 плафонов, каждый плафон состоит из 2 ламп по 18 Вт.
Блок управления и его компоненты импортного производства (Mitsubishi, Omron), они защищены от перегрузки, перегрева и пропадания фазы, мотор с линейным приводом. При истечении заданных значений времени, работа камеры автоматически прекращается. Покраска происходит при постоянной температуре.
Питание камеры Guangli GL3 осуществляется: посредством трёхфазной сети с напряжением 380 В, мощность установки 15 кВт.
Дополнительно опции к Guangli GL3
Газовая горелка RIELLO max мощностью 200 кВт (по запросу)
Повышение мощности теплообменника и горелки до 300 кВт (энергоноситель дизель) для работы при -20С (по запросу)
Повышение мощности теплообменника и горелки до 300 кВт (энергоноситель газ) для работы при -20С (по запросу)
Дополнительные ворота для камеры проездного типа (по запросу)
Утепленная крыша, наполнение пенополистирол 50 мм. (по запросу)
Технические характеристики Guangli GL3 LUX (ТЭН)


Соответствия и стандарты:
Оборудование соответствует требованиям ТР ТС 004/2011 О безопасности низковольтного оборудования, ТР ТС 010/2011 О безопасности машин и оборудования, ТР ТС 020/2011 Электромагнитная совместимость технических средств, а также ГОСТ Р МЭК 60204-1-2007, ГОСТ 30804.6.2-2013, ГОСТ 30804.6.4-2013, ГОСТ 12.2.003-91, ГОСТ 15150-69. Оборудование максимально адаптировано для работы в Российских условиях. Имеет ряд защитных устройств для предотвращения аварийных ситуаций, связанных с нестабильностью сетей.
Габаритные размеры Guangli GL3

Принцип работы камеры в разных режимах:

Схема размещения ОСК в транспорте:

|
Страна производства
|
КНР |
|
Бренд
|
Guangli (Китай) |
|
Мощность, кВт
|
300 кВт (7,5+7,5) |
|
Напряжение питания
|
380 |
|
Грузоподъемность
|
2400 |
|
Горелка
|
электрическая |
|
Внешние габариты (ДхШхВ), м
|
7х5,3х3,5 |
|
Внутренние габариты (ДхШхВ), м
|
6,9х3,9х2,7 |
|
Размер ворот, (ШхВ), м
|
3х2,6 |
|
Аварийная дверь, (ШхВ), м
|
0,8х2 |
|
Приточный вентилятор мощностью, кВт
|
7,5 |
|
Вытяжной вентилятор мощностью , кВт
|
7,5 |
|
Воздухообмен, м3/ч
|
до 24000 |
|
Скорость потока воздуха, м/сек
|
0,25 |
|
Напряжение, мощность, В / кВт
|
380 / 16,5 |
Отзывы
Оставить отзыв
Загрузка отзывов...
Вы можете воспользоваться одним из следующих вариантов оплаты:
- Оплата наличными. Мы принимаем наличные деньги (только рубли) через кассовый фискальный аппарат.
- Безналичный расчет для юридических и частных лиц.
- Оплата банковской картой. Оплата происходит через ПАО СБЕРБАНК с использованием Банковских карт следующих платежных систем: VISA, VISA Electron, Maestro, MasterCard, МИР
Товар можно получить одним из следующих способов:
- Самовывоз товара с пункта выдачи по адресу в вашем городе.
- Курьерская доставка с 9-00 до 23-00 по рабочим дням. Покупатель обязуется разгрузить оборудование собственными силами и в кратчайшие сроки. Простой автомобиля оплачивается отдельно.
- Доставка одной из следующих транспортных компаний: "ПЭК" (Первая Экспедиционная Компания), "ЖДЭ" (ЖелДорЭкспедиция), "ЭНЕРГИЯ", "ДЕЛОВЫЕ ЛИНИИ", "СДЭК" и другие.

